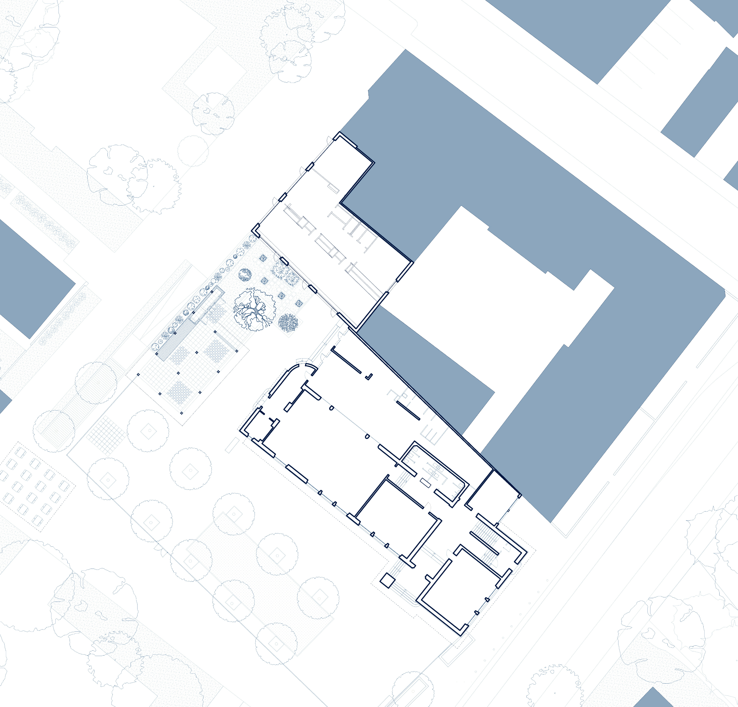
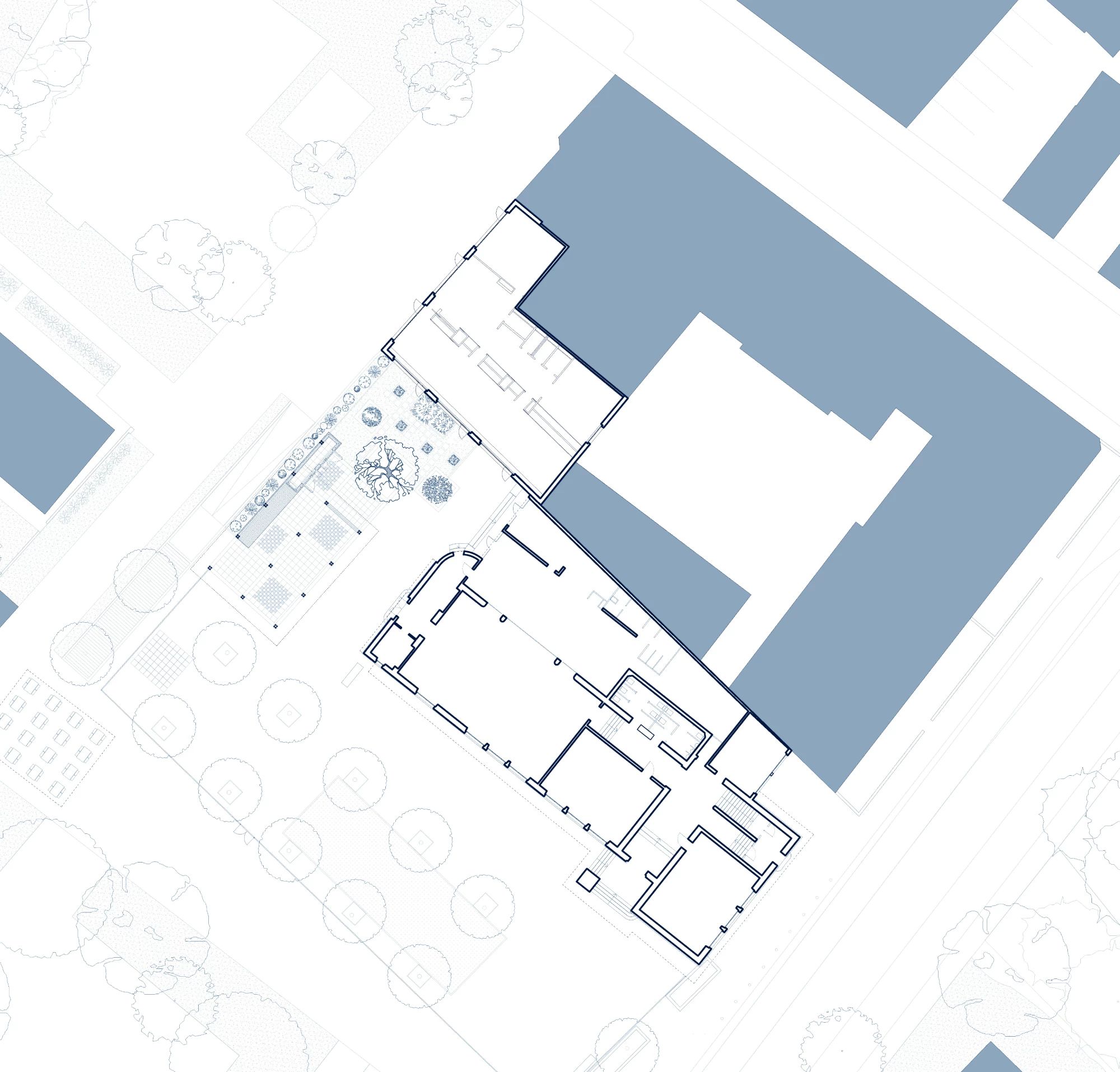
Favre Square School

Revamp of the Playground and Construction of a Covered Area

Project detailsfichedetaillemobile

January 2022 Start of studies
June 2023 Planning permission
July 2024 Start of construction
March 2025 Inauguration

Chêne-Bourg